Le charme de l’ancien
allié au confort moderne.

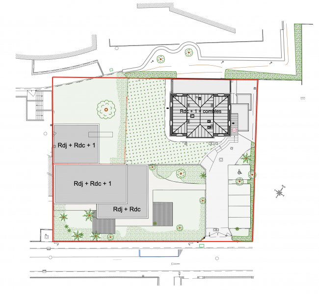
Phase 1 : Rénovation soignée de la Villa Nemours en 2 logements neufs avec un agencement au gout du jour et une nouvelle performance énergétique. Ces deux lots auront chacun un jardin privatif exceptionnel.

Phase 2 : A proximité, dans un bâtiment contemporain et bas carbone qui sera réalisé en grande parti en bois et hors site, nous développons un co-living sénior de 10 chambres avec des parties communes spacieuses ouvrants directement sur un jardin qui sera un vrai lieu de rencontre. Au-dessus nous réaliserons un appartement familiale lumineux avec de grandes terrasses et un accès indépendant.

  • Emplacement
    Chaville, coeur de ville
  • Projet
    Restauration d'une maison historique
    Construction neuve d'un bâtiment en bois
  • Usage
    Résidence seniors
Une histoire à réécrire

Retrouver une fonction
préserver un patrimoine

Le défi de ces bâtisses fortement imprégnée de leur histoire est de parvenir à les réhabiliter de façon respectueuse tout en imaginant un nouvel usage, adapté à la mission de ses acquéreurs. C'est tout le sens qu'Alchimètre donne au travail qu'elle conduit : chaque projet est une nouvelle histoire.

Prestations

Patrimoine & contemporain
au service d'un projet intergénérationnel

Le projet conugue la rénovation intégrale du pavillon historique ainsi que la construction d'un bâtiment moderne et fonctionnel en bois dans une logique de développement durable.
15, place Pey-Berland
33000 Bordeaux

25-27, place de la Madeleine
75008 Paris

contact@alchimetre.com